土地 八尾市山城町4丁目
所在地
八尾市山城町4丁目
1,780万円
25.74坪
・仮測量実施済みです!
・周辺施設充実しています♪
・サンディ 八尾山城店まで徒歩で2 分(約160 m)
・ローソン 八尾楠根町店まで徒歩で3 分(約250 m)
・ドラッグセガミ 八尾北本町店まで徒歩で9 分(約650 m)
・八尾萱振郵便局まで徒歩で11 分(約750 m)
・八尾はぁとふる病院まで徒歩で11 分(約800 m)
物件概要
- 交通
-
近鉄大阪線 久宝寺口駅 まで 徒歩14分
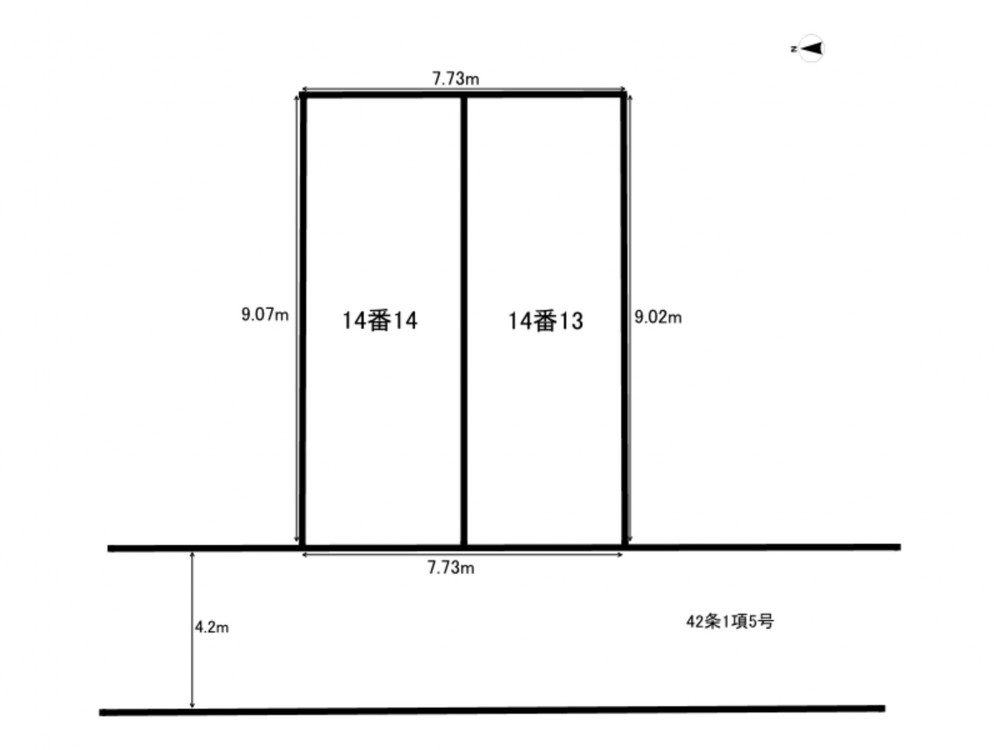
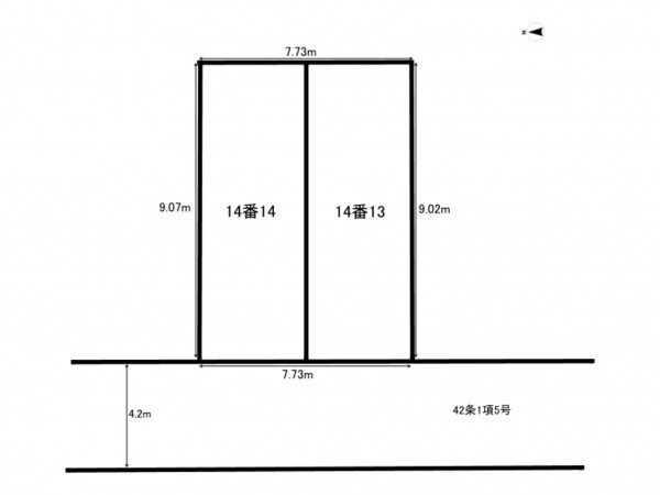
- 接道状況
- 西側 私道4m 間口約7.7m
- 土地面積
- 公簿 85.12㎡ (25.74坪)
- 建ぺい率
- 60%
- 容積率
- 200%
- 土地権利
- セットバック
- 無し
- 小学校区
- 用和 ( 400m )
- 中学校区
- 八尾 ( 850m )
- 私道負担
- 有 15.46 ㎡
- 建築条件
- ー
- 地目
- 宅地
- 現況
- 上物有
- 引渡時期
- 即時
- 上水道
- 公共
- 下水道
- 公共
- ガス
- 都市ガス
- 都市計画
- 市街化区域
- 用途地域
- 2種中高
- 設備・条件
- 備考
- 取引態様
- 仲介



