中古一戸建て 八尾市荘内町1丁目
所在地
八尾市荘内町1丁目
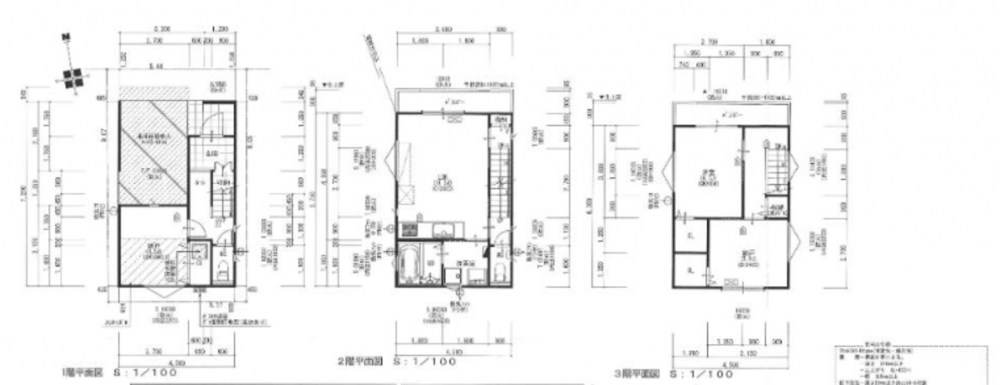
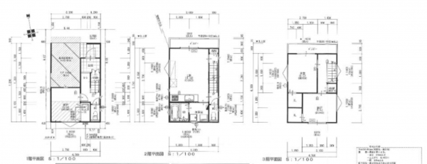
3,380万円
7.11坪
3LDK
物件概要
- 交通
-
近鉄大阪線 近鉄八尾駅 まで 徒歩9分
- 接道状況
- 北側 公道4.8m 間口約5.4m
- 土地面積
- 実測 49.03㎡ (14.83坪)
- 建物面積
- 23.51㎡ (7.11坪)
- 築年数
-
2024年
(令和6)
12月
築1年 - 建ぺい率
- 60%
- 容積率
- 200%
- 土地権利
- 所有権
- 構造および階数
- 木造 地上3階建
- 小学校区
- 高美 ( 700m )
- 中学校区
- 高美 ( 450m )
- 私道負担
- 無
- 地目
- 宅地
- 現況
- 空
- 引渡時期
- 即時
- 駐車場
- 有
- 上水道
- 公共
- 下水道
- 公共
- ガス
- 都市ガス
- 都市計画
- 市街化区域
- 用途地域
- 2種中高
- 設備・条件
- 備考
- 取引態様
- 仲介



