新築一戸建て 八尾市八尾木3丁目
所在地
八尾市八尾木3丁目
4,130万円
29.03坪
3LDK
物件概要
- 交通
-
関西線 志紀駅 まで 徒歩15分
- 接道状況
- 北側 公道4.7m 間口約7.5m
- 土地面積
- 公簿 109.54㎡ (33.13坪)
- 建物面積
- 95.99㎡ (29.03坪)
- 築年数
- 2026年 (令和8)
- 建ぺい率
- 60%
- 容積率
- 200%
- 土地権利
- 所有権
- 構造および階数
- 木造 地上2階建
- 小学校区
- 曙川 ( 789m )
- 中学校区
- 曙川南 ( 1035m )
- 私道負担
- 無
- 地目
- 宅地
- 現況
- 引渡時期
- 相談
- 駐車場
- 有
- 上水道
- 公共
- 下水道
- 公共
- ガス
- 都市ガス
- 都市計画
- 市街化区域
- 用途地域
- 1種住居
- 設備・条件
- 備考
-
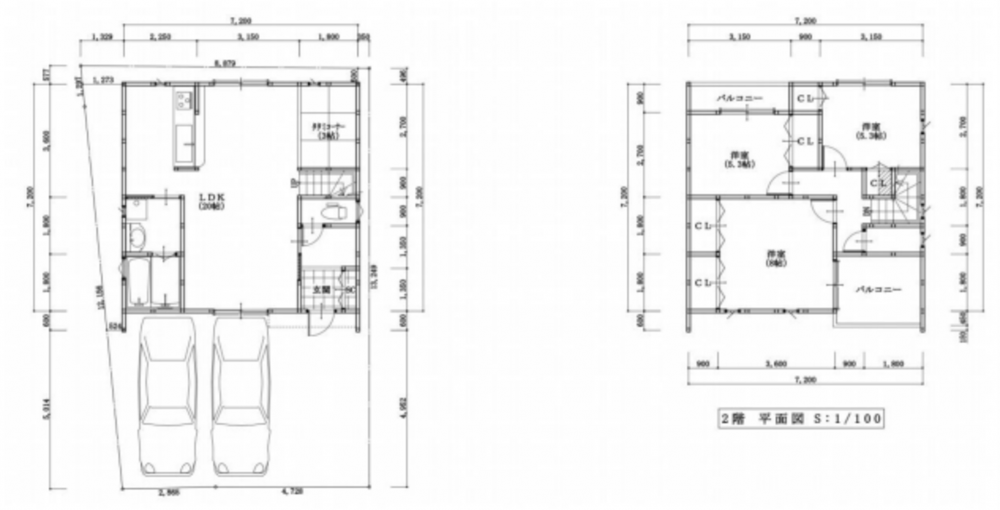
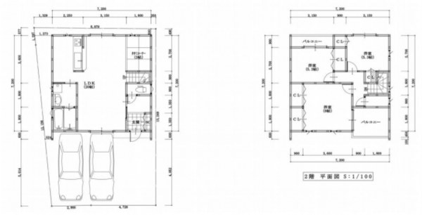
IC号地 現状更地の為 プラン変更承ります
LDK+畳スペース合わせて23帖の広々空間です
【敷地面積33.13坪 車2台駐車可能 「インナーバルコニー
■キッチンクリナップ KTシリーズ 食洗器・カップボード付き
■ユニットバス TOTO サザナシリーズ 浴室乾燥機付き - 取引態様
- 仲介



